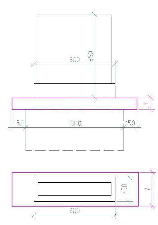
gavrylof Опубликовано 23 августа, 2022 Опубликовано 23 августа, 2022 Есть нестандартная стела под 250-300 кг, одиночная, без цветника и пр. Как вычислить каких габаритов должен быть фундамент? Ширина ясно — чтобы по 15-20 см фундамент опирался на целину, а что по остальным параметрам. Есть зависимость от веса? Вторая проблема — зацементировать подставку в бетоне не получится. Камень будет готов в октябре, а залить просят уже сейчас. На что посоветуете приклеить подставку?
zelenok Опубликовано 23 августа, 2022 Опубликовано 23 августа, 2022 46 минут назад, fngavrilov сказал: 15-20 см фундамент опирался на целину Тут от грунта сильно зависит и 15-20 маловато на мой взгляд. Залей 15шку армированную десяткой, каркас 100 в два слоя до краёв и сверху снизу по паре см, вертикальные через одну-две, да посередь пару штырей 14-х привяжи, см 12-15 высотой-лишка отрежешь если чо, лей чуть ниже уровня грунта 130х40х15. Дёшево и сердито 3
gavrylof Опубликовано 21 января, 2023 Автор Опубликовано 21 января, 2023 @zelenok А в чем смысл верхнего пояса арматуры? Там же только сжатие конструкции.
zelenok Опубликовано 21 января, 2023 Опубликовано 21 января, 2023 1 час назад, fngavrilov сказал: А в чем смысл верхнего пояса арматуры? Там же только сжатие конструкции. Как-бы не только сжатие, но и прогиб. Мы-же работаем над ямами, поэтому два пояса как ни крути
gavrylof Опубликовано 23 января, 2023 Автор Опубликовано 23 января, 2023 @zelenok да, фундамент работает как балка на двух опорах. Низ балки растягивается — нужна арматура, так как сталь работает на растяжение. Верх балки только сжимается — арматура наверняка излишняя, нужен расчет.
Агита Опубликовано 23 января, 2023 Опубликовано 23 января, 2023 Да уж, проблема ))) У нас это делается просто и быстро. Размер площадки?
Агита Опубликовано 23 января, 2023 Опубликовано 23 января, 2023 накидала на быстру руку площадка 15 см , затем облицовочные работы колья можно пальметные 2.80 ( если достанете) у меня их тож осталось с десяток, только не кустарные (я так их называю) заливают в форммах , рассыпаются через год
zelenok Опубликовано 23 января, 2023 Опубликовано 23 января, 2023 2 часа назад, Агита сказал: затем облицовочные работы Ага, никому не показывай, такую схему разворитит на глине с мором в щебёнку на раз Останется только подмести и переделать на арматуре с бетоном
Агита Опубликовано 23 января, 2023 Опубликовано 23 января, 2023 @zelenok за 30 лет на моих площадках ни чего не разворотило)
zelenok Опубликовано 23 января, 2023 Опубликовано 23 января, 2023 28 минут назад, Агита сказал: за 30 лет на моих площадках ни чего не разворотило) Ну, дык, климат у вас не тот, да и грунт тоже
Агита Опубликовано 23 января, 2023 Опубликовано 23 января, 2023 @zelenok да не скажи, глина, ракушняк, чернозема толком то и нет, приходится так устанавливать чтоб во сне не видать.Кладбища в скалах, а чё, норм....
zelenok Опубликовано 23 января, 2023 Опубликовано 23 января, 2023 23 минуты назад, Агита сказал: чтоб во сне не видать Вот поэтому и арматура в два пояса и нормальный бетон Бут тоже ушёл лесом, со временем
Агита Опубликовано 23 января, 2023 Опубликовано 23 января, 2023 @zelenok у меня арматура в три слоя, извиняюсь если что напортачила)
gavrylof Опубликовано 23 января, 2023 Автор Опубликовано 23 января, 2023 @Агита это вертикальный разрез? То есть у вас по сути бутовый фундамент с оригинальной армировкой? Зачем бутылки?
Агита Опубликовано 23 января, 2023 Опубликовано 23 января, 2023 @fngavrilov бутылки я потом вытаскиваю и заливаю цементом чтобы баз (тумбочку закрепить) 4 часа назад, fngavrilov сказал: Зачем бутылки?
gavrylof Опубликовано 24 января, 2023 Автор Опубликовано 24 января, 2023 @Агита а, так у вас значит на рисунке фундамент и под "цветник" сделан, а у меня его нет. Из-за этого сразу не сообразил что к чему на картинке. @zelenok есть смысл укладывать утеплитель под фундаментную плиту, чтобы грунт сильно не промерзал, не было пучения, и всю конструкцию не выдавливало зимой? По опыту.
zelenok Опубликовано 24 января, 2023 Опубликовано 24 января, 2023 4 часа назад, fngavrilov сказал: утеплитель под фундаментную плиту, Утеплитель работает когда подразумевают какое-то тепло. В отдельно стоящем сооружение его-же не предполагается Компенсируют морозное пучение трамбованным песчано-гравийным пирогом по геотекстилю с предотвращением размыва по краям. При жесткой армированной незаглубленной плите особого смысла в подушке тоже нет. Рвёт в основном заглубленную плохо армированную ленту с длинной более 2.5м без подушки и водонасыщаемый бутовый фундамент-он априори не может быть жёстким 1
gavrylof Опубликовано 25 января, 2023 Автор Опубликовано 25 января, 2023 В 24.01.2023 в 14:17, zelenok сказал: Утеплитель работает когда подразумевают какое-то тепло. В отдельно стоящем сооружение его-же не предполагается Утепляют как бы нижележащий грунт от мороза, который идет сверху. Только утеплитель по площади должен быть гораздо больше подошвы фундамента, чтобы это имело смысл
zelenok Опубликовано 25 января, 2023 Опубликовано 25 января, 2023 8 минут назад, fngavrilov сказал: Утепляют как бы нижележащий грунт от мороза, который идет сверху. Мы с вами ведём разговор о малозаглубленных фундаментах для надгробных сооружений, указанный вами регион подразумевает глубину проморозки сопоставимую с нормами глубины захоронения в гробу. Так-то склепы стоит делать заранее, ибо эксгумация-сложная в оформлении и исполнении процедура, но у нас есть и ещё один чудный закон-нет покойника-нет и места на кладбище Так что ваши размышления только для коммерческих, заранее оформленных мест и для капитального строительства, а это совсем другая история
gavrylof Опубликовано 26 января, 2023 Автор Опубликовано 26 января, 2023 @zelenok не понял причем тут склепы. Речь была о том, что прямо под подошву фундамента можно поместить утеплитель с большим вылетом за его (фундамента) грани, и это спасет от пучения. В теории.
zelenok Опубликовано 26 января, 2023 Опубликовано 26 января, 2023 16 минут назад, fngavrilov сказал: В теории. В теории утеплитель отсекает и изолирует проморозку от грунта для остальной конструкции, вы собираетесь сохранять тепло и тратить меньше на отопление? Нету связи между наличием утеплителя и пучением. Вода и мороз уродуют грунт с огромными перепадами и силой, отсутствие одной составляющей оставляет грунт в покое. 27 минут назад, fngavrilov сказал: е понял причем тут склепы. Ну, дык строить-так строить, чо просто так землю лопатить В нашем случае делают тупо жёский каркас Для особо требовательных-каркас на столбах ниже уровня проморозки но я считаю это излишним перестраховыванием и тратами.
gavrylof Опубликовано 27 января, 2023 Автор Опубликовано 27 января, 2023 (изменено) В 26.01.2023 в 11:34, zelenok сказал: Нету связи между наличием утеплителя и пучением. Есть, вот так это работает: Утеплитель сохраняет "летнее" тепло, грунт под фундаментом не промерзает, не пучинится. Изменено 27 января, 2023 пользователем fngavrilov
zelenok Опубликовано 27 января, 2023 Опубликовано 27 января, 2023 В 24.01.2023 в 09:55, fngavrilov сказал: По опыту. Указанные вами технологии не применяют на кладбищах 36 минут назад, fngavrilov сказал: вот так это работает: Ну и пускай себе работает, если работает
gavrylof Опубликовано 27 января, 2023 Автор Опубликовано 27 января, 2023 5 часов назад, zelenok сказал: Указанные вами технологии не применяют на кладбищах Это отдельная тема. Установщики, к которым я обращался со своим проектом, сильно озадачились уже от того, что у меня нет цветника и фундамент торчать не должен. Малейшее отклонение от привычного шаблона и сразу в ступор.
zelenok Опубликовано 27 января, 2023 Опубликовано 27 января, 2023 (изменено) 10 минут назад, fngavrilov сказал: Установщики Установщики-совсем недавно сгенерированная профессия только ради отъёма денег у населения, ничего не поделаешь Так-то опыт дело приходящее и первые проводники в этот мир-наши с вами деды. Современные технологии в большинстве своём придуманы менеджерами по продажам и требуют проверки временем в определённых условиях, так-то всё давно придумано-утеплитель это сложно наведённая галлюцинация об его необходимости ради впаривания этого материала, тем более в данном случае. Утеплитель хорош если применим в нужном месте и правильно, в вашем случае он тупо неуместен, компенсировать пучение проще и правильней другим общестроительным способом И так-то, да, любой проект подлежит внимательному рассмотрению и прениям, я-бы тоже задал наводящие вопросы и сделав выводы свали-бы ответственность на автора, если-бы не были найдены общие точки соприкосновения Нет ничего проще сделать так как разложено по полочкам Изменено 27 января, 2023 пользователем zelenok
Рекомендуемые сообщения
Создайте учетную запись или войдите, чтобы комментировать
Вы должны быть пользователем, чтобы оставить комментарий
Создать аккаунт
Зарегистрируйтесь для получения аккаунта. Это просто!
Зарегистрировать аккаунтВойти
Уже зарегистрированы? Войдите здесь.
Войти